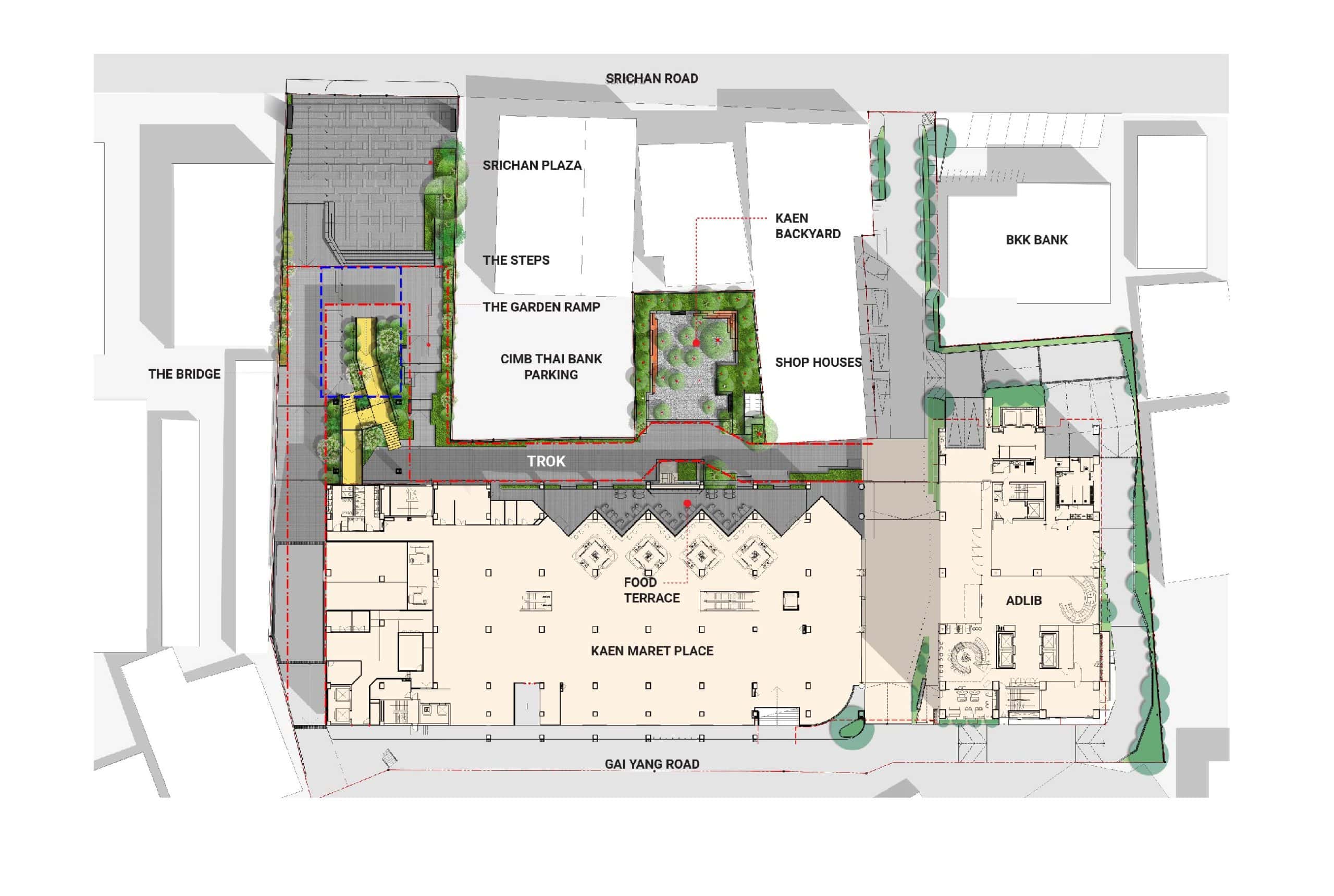
KAEN KET : SRICHAN PLAZA AND SKY MARKET
Khon Kaen, Thailand, Under Construction
Landscape Planning and Design Scope:
Sichuan Plaza , Garden Ramp, Garden Alley, Kaen Backyard, Sky Market, Exterior Planters
Building : Market Place I Lifestyle Mall
Client : Khon Kaen Innovation Centre / Mitrphol Group Thailand
Architecture : Integrated Field
Interior Architecture : Integrated Field
Lighting Consultant/Supplier : LUNDI
Main Consultant / Construction Management : Currie & Brown
Structural Engineer : Cedar Structural Inc.
Mechanical Engineer : WAG
Main Contractor : Construction Lines
Softscape Contractor : TBD














